日本オートマチックマシン(株)

精密NC・MC用並列バイス PF390

  • 型番:PF390
  • 発注コード:JAM20
  • メーカー商品コード:4H900144
  • JANコード:―
商品一覧へ
(サイズ・色違いなど)

仕切価格
標準価格 \826,000
 
注文単位 1台
  • ※12/16 23:30 時点の情報です


用途
商品説明
  • レンチ締めタイプの高精度マシニングセンター用多連バイスです。
  • クランプ力が45度斜め下方向に働き、ワークの浮き上がりを抑え、高精度な切削、タッピング加工などに適しています。
  • SKS製全面焼入れ処理で耐摩耗性に優れ、経年変化のない高精度小型マシニングセンター搭載用バイスです。
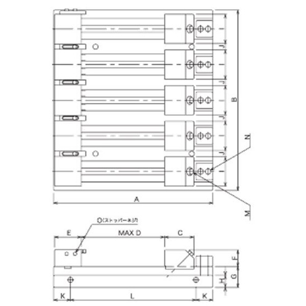
商品スペック
  • 商品タイプ:六角レンチ締付式/浮上がり防止機構/磁性あり
  • 材質:SKS材
  • A(mm):380
  • B(mm):430
  • 硬度(°):ベース/HRC50° クランプ/HRC60°
  • L(mm):300
  • C(mm):70
  • D(mm):204
  • H(mm):30
  • E(mm):64
  • Mass(kg):67.0
  • F(mm):40
  • G(mm):50
  • 連数(連):5
  • I(mm):70
  • J(mm):15
  • K(mm):40
  • M(mm):M8
  • N(mm):M8
  • O(mm):M5
  • P(mm):50
  • Q(mm):230
  • R(mm):M12
  • 精度ベッド面の平行度(mm):0.005/100以内
  • S(mm):18
  • 精度固定口金面の直角度(mm):0.001/100以内
  • T(mm):M12
  • U(mm):255
注意事項
内容品・付属品
原産国
特記事項

この商品を見た人はこちらの商品も見ています