(株)ナベヤ

MCツーリングブロック 4面軽量タイプ TBLF04-25065

  • 型番:TBLF04-25065
  • 発注コード:BKIZY
  • メーカー商品コード:166656
  • JANコード:4904115257273
商品一覧へ
(サイズ・色違いなど)

仕切価格
標準価格 \463,000
 
注文単位 1個
  • ※12/12 23:30 時点の情報です


用途 ●マシニングセンタの積載重量制限内で加工するワークの対象範囲を拡大することを目的に開発された4面ツーリングブロックです●横形マシニングセンタでワーク/ジグパレットを取り付けて加工するジグベースとしてご使用いただけます
商品説明
  • ベースを軽量化することで、ワークとジグの総重量をマシニングセンタの積載制限内に収め、より重いワークの加工が可能になります。
  • 剛性を保ちつつ、リブ構造などで最適設計されており、類似のスタンダードタイプ(TBS○S)と比べて約30%の軽量化を実現しています。これにより、複数台に分散せず1台の機械にワークを集約でき、機械稼働率の向上、リードタイムも把握しやすくなります。
  • 使用面は直角・平行を仕上げてあるため、設置後すぐにご使用いただけます。
  • 加工するワークやご使用されるジグに合わせて溝やタップ穴などの追加工ができます。
  • また使用面はご使用の機械と同一精度に仕上げられるように、セルフカット代(0.4~0.5mm)を設けています。
  • 座部分が傾斜形状の軽量・傾斜ベースタイプ(TBL)と比較して、座がフラットで使用面が大きく確保されています。
  • ジグの構築範囲が広くなり、サイズの大きなワークを取り付けできます。
商品スペック
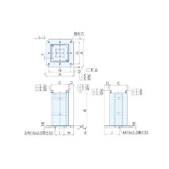
  • ベース(mm):400
  • 高さ(mm):650
  • ポスト巾(mm):250.8
  • 質量(kg):158
  • A(mm):400
  • B(mm):650
  • C(mm):250.8
  • D(mm):74.6
  • E(mm):50
  • F(mm):25
  • G(mm):320
  • 取付穴径(mm):φ18
  • ねじ穴数(コ):4
  • H(mm):145
  • I(mm):110
  • J(mm):225
  • K(mm):0.02/300
  • L(mm):0.02/300
  • 材質(本体):FC250
  • 熱処理:焼鈍
  • 表面処理:塗装(黒皮部)
注意事項
  • 使用前後に切粉が付着していないかの確認と使用後に切粉の除去を行ってください。そのままにしておくと作動不良・精度不良の原因になります。
  • 工作機械から取り外して保管する場合は、切削水、切粉等を完全に取り除いた後、防錆油を必要部位に塗布した状態で低湿度の場所で保管してください。
内容品・付属品 ●天蓋●天蓋取付ボルト●アイボルト
原産国
特記事項

この商品を見た人はこちらの商品も見ています